Quiet street. Steps to Wanbrow Park. Endless potential.
This is a rare 820sqm block in a peaceful location, perfect for families or investors looking to create something special. A short walk to Duncraig Senior High School and just a short drive or bike ride to Duncraig Primary School and St Stephen's School, this location lays the foundations for your future or current family.
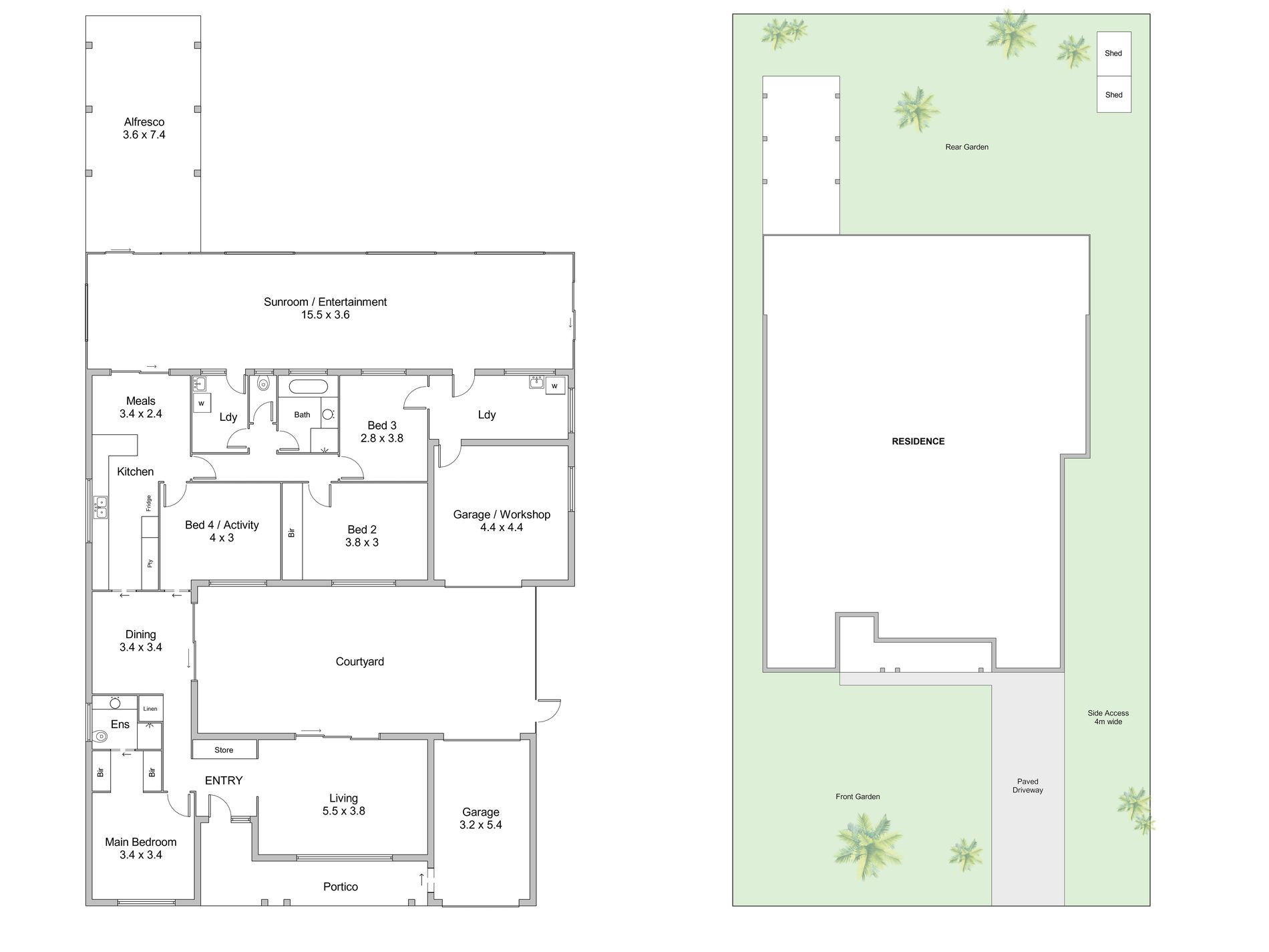
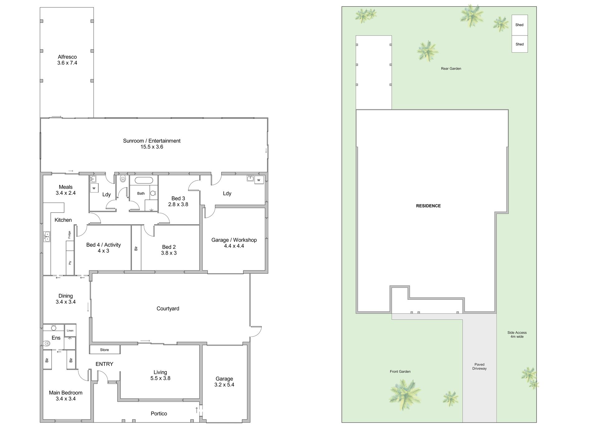
The existing home is solid but needs love, or you can knock it down and design your dream residence. The tandem garage is ready for your creative touch, and the middle courtyard is a blank canvas for outdoor living, entertaining, or play. With room for a pool, large backyard, or extensions, you can truly make this property your own.
Being sold as-is, it is a renovator's dream or builder's opportunity, the choice is yours. Large blocks in such a quiet, convenient location are rare.
Property highlights:
• 820sqm block on a peaceful street
• Space for pool, garden, or large backyard
• Short walk to Duncraig Senior High School
• Close to Duncraig Primary School and St Stephen's School
• Wanbrow Park at your front door
Big block. Big vision. Endless possibilities. Your family's future starts here.
Offers From $1,069,000
Features
- Outdoor Entertainment Area
- Shed
- Courtyard
- Secure Parking
- Built-in Wardrobes
- Workshop
- Solar Panels





































