Set within the tightly held and prestigious Burswood Peninsula Estate, this exceptional residence offers a level of privacy, scale and sophistication rarely found in apartment living. Designed for those who value quality over compromise, this is a home created intentionally, where lifestyle, security and refinement meet.
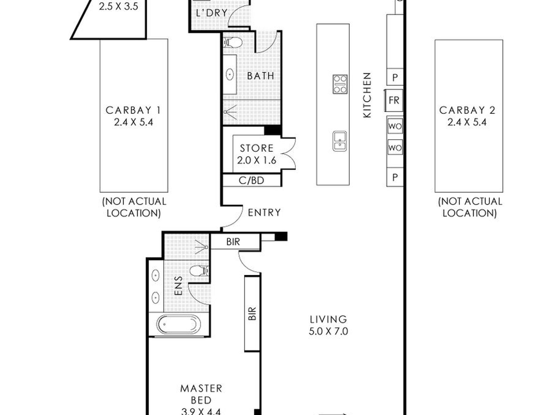
Spanning an impressive 159sqm of internal living, the apartment is introduced by high ceilings, shadow-line cornicing and impeccable finishes throughout, immediately setting a tone of understated luxury. The expansive open-plan living and dining area flows seamlessly to a generous city-facing balcony, where evenings are best spent entertaining guests against a backdrop of Perth's glowing skyline, a truly spectacular night-time outlook.
The home is further enhanced by a versatile second living space, ideal as a media lounge, sitting room, home office or, if desired, a potential third bedroom. This flexibility adds long-term value and appeal, allowing the apartment to adapt as life evolves.
The kitchen is both beautiful and functional, featuring Miele appliances, stone benchtops, abundant cabinetry and thoughtful storage, making everyday living effortless while maintaining a refined aesthetic. Both bedrooms are generously proportioned, serviced by two beautifully appointed bathrooms, completing a layout that feels spacious, calm and considered.
The apartment is also complimented with near-new, exemplary quality carpet and custom window treatments, thoughtfully selected to collaborate with the caliber and refinement expected of a truly premium residence.
Positioned within a low-rise complex with only two apartments per floor, privacy is paramount. Residents enjoy direct lift access from the secure, gated underground carpark straight to their floor, with two allocated car bays - an ideal lock-up-and-leave solution for the security-conscious buyer.
Beyond the apartment itself, the lifestyle is equally compelling. Step outside to tree-lined walkways, scenic river outlooks and uninterrupted access to riverside paths and cycleways. Morning walks along the Swan River, sunset rides toward East Perth via the Matagarup Bridge, and weekends strolling through nearby parklands are all part of daily life here.
Moments from Optus Stadium, world-class sporting events, concerts, Crown's dining and entertainment precinct, and convenient public transport including nearby train stations, this location balances exclusivity with effortless connectivity.
This is not apartment living by necessity, it is apartment living by choice. A residence for those who have worked hard, value discretion, and are ready to enjoy the rewards: space, privacy, security and a truly enviable riverside lifestyle.
An exceptional opportunity to secure one of Burswood Peninsula's finest low-rise residences. Private inspections available by appointment.
OUTGOINGS
• Council Rates: $ 3,200 per annum
• Water rates: $1,550 per annum
• Strata levies: $2,815 per quarter
• Tenure: Freehold strata / Vacant possession
AGENTS:
Nic Di Rosso
Phone: 0418 957 346
Email: [email protected]
Aytan Ben-Pelech
Phone: 0403 557 892
Email: [email protected]
WHY Deximal
At Deximal, we believe exceptional homes deserve more than a standard sales process. Inspired by Decimal - precision and Dexterity - in action, we take a considered, hands-on approach to showcasing property at its best, combining strategic marketing, local expertise and tailored buyer engagement.
We understand that premium property is as much about lifestyle and intention as it is about features. That's why we focus on telling the right story, to the right buyer, with clarity, confidence and care, delivering results without noise or pressure. Smart Approach. Smarter Results.
DISCLAIMER
Whilst every care has been taken in preparing these particulars, the information is provided for general guidance only. Prospective purchasers should undertake their own due diligence and enquiries to satisfy themselves as to the accuracy and completeness of the details. Measurements and areas are approximations only and this material does not form part of any contract.







































